PROJEKTE L
PROJEKTE S
WETTBEWERBE
15-03 Haus ZE
14-18 Haus LO
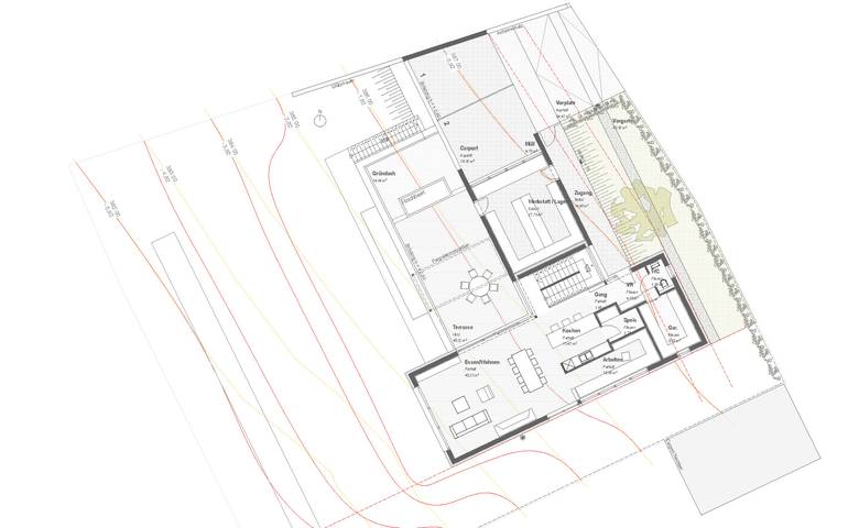
14-05 Haus D
14-03 Haus S
13-17 Garage MO
13-15 Haus BA
13-12 Zubau SCH
13-01 Haus MA
12-18 Studie / Haus WS
11-16 Studie / Haus HO
11-16 Studie / Haus NAU
11-12 Kapelle FREI
11-07 Villa T
10-07 Haus SA
08-03 Haus KRO
07-02 Haus KO
06-00 Haus GA